Kitwall Lane

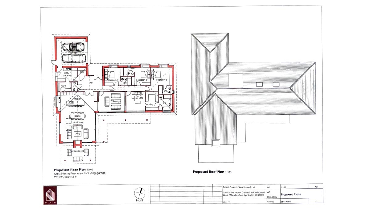
Solent Projects (New Homes) Ltd
Kitwall Lane
Kitwall Lane
Kitwall Lane
Kitwall Lane
Kitwall Lane

Project Info:

Coming soon

  • Created by: Solent Projects (New Homes) Ltd
  • Completion date: Available late summer
  • Address: Kitwall Lane (Milford On Sea)